HC-800-2- függesztőpályás sörétező gép

Szakterületeink

HC-800-2- függesztőpályás sörétező gép

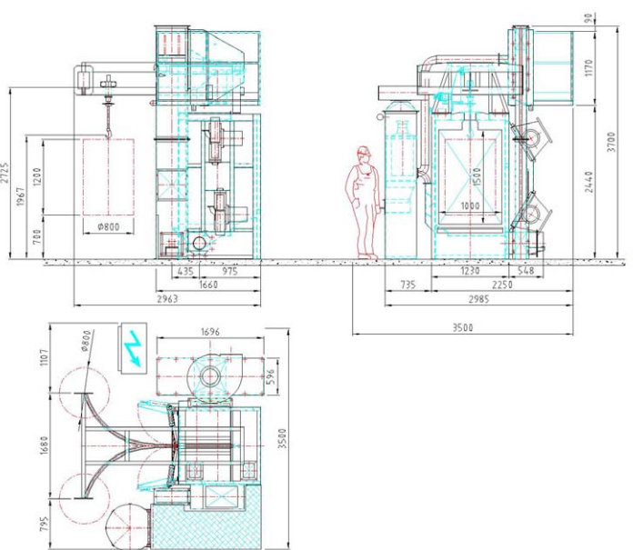
Y pályás függesztéses 3 szórókerekes sörétező gép gázpalackok külső tisztításához. Gázpalack hossz -1200 mm, átmérő – 800 mm, súly -400 kg. 6-12 függesztés / óra (kb. 250 db gázpalack/műszak) teljesítményre képes gép. 180 kg szemcse/perc. Egy függesztés akár több gázpalack

Ipari megbízhatóság

Tartós szerkezeti kialakítás és szabványos megoldások a biztonságos működésért.

Testreszabható kialakítás

Az egyedi műszaki igényekhez, gázfajtákhoz és üzemeltetési feltételekhez igazítva.

Leírás

Tudj meg többet a termékről

Gázpalack hossz -1200 mm, átmérő – 800 mm, súly -400 kg. 2 szórókerekes szemcseszóró gázpalackok tisztításához. 1000 kg szemcsetöltet. A gázpalackok méretétől függően egy függesztés akár több gázpalackot is jelenthet. 6-12 függesztés / óra (250 db gázpalack/műszak) teljesítményre képes gép.

Lehetséges opciók

  • Frekvenciaváltó a szórókerekekhez, a szemcse szórási erejének változtatásához
  • ATEX előírásoknak megfelelő szűrő és védelmi rendszer
  • Üzembe helyezés külön költségként kerül felszámításra

 

Általános leírás

A HC tip. szemcseszóró berendezés általános esetben kisebb öntvények, hegesztett, kovácsolt munkadarabok, csokrosítva függeszthető alkatrészek felülettisztítására ajánlott. A berendezések két szórófejjel rendelkeznek.
Ezek egymástól eltolt síkú elhelyezkedése biztosítja azt, hogy a munkadarabok teljes felületén érvényesüljön a szemcsesugár tisztító hatása. A szórófejek axiális gravitációs szóróanyag bevezetésűek, mechanikus előgyorsítóval rendelkező 6 lapátos konstrukciók, pontos szóróanyagsugár beállítási lehetőséggel. A szemcseszórandó alkatrészeket kézi konvejor pályás függesztésen kell a tisztítókamrába vonszolni. A függesztés a munkadarabokkal együtt folyamatos forgómozgást végez, a szóró kerekek előtt. Az ipszilon pályára szerelt két darab függesztés lehetőséget biztosít arra, hogy míg az egyik függesztés a szóró kabinban tartózkodik, addig a másik függesztésen elő lehet készíteni a következő szórandó adagot. A szóró kabin aktív szemcsesugár zónába eső belső felülete nagy kopásállóságú mangánacél burkolattal rendelkezik, míg az egyéb belső felületek kopásálló gumilemezzel védettek.
Szemcseszórás csak a kabin zárt ajtai mellett lehetséges, mely tökéletes szemcsekipattanás elleni védelmet nyújt. A kabin ajtait pneumatikus munkahenger nyitja-zárja. A szóróanyag zárt és folyamatos cirkulációját szállítócsiga, serleges elevátor , szóróanyag tisztító egység és adagoló biztosítja. Az optimális felületi tisztaság érdekében a kiszórt szóróanyag mennyisége és a szórási időtartam fokozatmentesen állítható. Opciós tételként a szórófejek fordulatszáma frekvenciaváltóval szabályozható.  A megtisztított alkatrészeket a szórás befejezése és az ajtó kinyitása után kézi erővel kell a kamrából eltávolítani és az időközben újabb alkatrészekkel előkészített függesztéssel kicserélni. A szemcseszórás során keletkező por elszívására és leválasztására korszerű patronos rendszerű porelszívó-porleválasztó berendezés szolgál. A berendezés központi vezérlőszekrényről működtethető.
Szerviz célokra kézi üzemmód, üzemszerű használatra automatikus üzemmód bekapcsolása lehetséges.

Porelszívás,- porleválasztás

A szemcseszórás során keletkező por munkatérből történő elszívása és a por környezetbe történő kijutásának megakadályozása. A porelszívó rendszer elemei:

  • Radiál elszívó ventilátor
  • Patronos porleválasztó
  • Elszívó és befúvó idomok
  • Elszívó csövezés

Az elszívott levegő visszakeringtethető a munkatérbe vagy kivezethető a kültérbe. A porleválasztó utáni, tisztított levegő portartama: max 3 mg/m3.

Biztonságtechnikai elemek

 Az ékszíjak és a lánchajtások hozzáférhetetlenséget biztosító burkolattal vannak ellátva. A gépházon levő ajtók elektromos reteszeléssel biztosítják, hogy nyitott ajtóval ne lehessen indítani a gépet, illetve az ajtó kinyitása esetén a berendezés azonnal leáll. A vezérlőszekrényen levő elektromos berendezések zárral biztosítottak illetéktelen működtetés ellen. Porelszívás nélkül a szórási folyamat nem indítható. A berendezésen 2 db vészleállító gomb található, bármelyik megnyomásával a berendezés azonnal leáll. A berendezés minden egysége be van kötve a vezetékes érintésvédelmi rendszerbe. A tápkábelek tömszelencén védőcsőben vannak a motorokhoz vezetve. A berendezés villamos egységei el vannak látva a szükséges szabványos jelzésekkel

A berendezés környezetre gyakorolt hatása

A szemcseszóró berendezés zajszintje. A gép által keltett zaj a gép közvetlen közelében mérve 79-83  db(A) értékre várható. A porelszívó és porleválasztó egység által keltett zaj értéke 75 és 78 db(A) . A megadott értékeknél magasabb zaj várható a patronok visszatisztítását végző szelepek működtetésénél – ekkor az impulzus zajszint 80 db(A) érték körül alakul.

Környezeti porterhelés Az ajánlatban leírtaknak megfelelően a porszűrő után a levegő porszennyezettsége 3 mg/m3 alatt van. Ezt az eddig elvégzett mérések is igazolják. Az összes megszűrt levegő mennyisége a környezetbe kivezethető vagy a munkatérbe visszajuttatható. A  berendezésen a szórásra használatos szóróanyag acélszemcse lesz. Ezért a levegő porszennyező anyag nem tartalmaz fibrogén anyagokat, amelyen hiányában az idevonatkozó „Munkahelyek levegőtisztasági követelményei – Szálló porok” – MSZ-21461-2:1992 szabvány 2. pontja értelmében a megengedhető átlagos koncentrációja 10 mg/m3.

A berendezés tűzvédelmi besorolása A szóróterem és a gépészet a „D”- tűzveszélyességi osztályba tartozik. Az ettől eltérő besorolásba tartozik a szűrőegység. Az idevonatkozó rendelet szerint a szűregység külső felülete és 1.000mm-s körzete MSZ EN 1127-1 szerint 22 zónába tartozik.

Szállítási egységek

Gépház  (szóró tér) A gépház hegesztett lemezkonstrukció, profilacél merevítéssel. A belső felület mangánacél kopásvédelemmel rendelkezik. A gépház oldalfalaira eltolt síkban van felszerelve 2 db ABR tip. szemcse- szórófej. A szórófejeket egyenként 5,5kW teljesítményű 2600 f/perc fordulatú elektromotor hajtja négy ékszíjjal. Az ékszíjfeszítés a motortartó billentésével oldható meg. A gépház alja kúpos vályús kiképzésű. Ebben történik a lehullott szemcse és nehezebb szennyeződés összegyűjtése. A kúpos vályúban szállító csiga található, amely a szóróanyagot a serleges elevátorhoz szállítja. A gépház tetején helyezkedik el a függesztés forgató hajtómű is. A gépházban képződő por elszívására a gépházon elszívó csonk van kiképezve, melyen keresztül a gépház a komplett gép porelszívó hálózatára van csatlakoztatva.

Mangán kopásvédelem A szóró tér (gépház) szóró síkban a belső felülete speciális kopásálló mangán lemezzel van borítva. A szóró síkon kívüli oldalak és a vég, valamint az ajtók kopásálló gumilemezzel van borítva. A lemez vastagsága 5-8 mm. A kopásvédelem hosszú ideig védi a gép szerkezeti egységeit a szóró sugár káros koptató hatásaitól. A 13% mangántartalmú acél jellemző tulajdonsága, hogy a szemcse ütő-koptató hatására a felülete egyre keményebb lesz. (Hadfield acél). A mangánacél hegesztése speciális elektródákkal történik, amelyek az alapanyagnak megfelelő kopásvédelmi tulajdonságokkal rendelkeznek.

Serleges elevátor. Fő részei: alsó szárelem, felső szárelem és a fej. Az alsó szárelem magába foglalja az elevátor alsó dobját, a csapágyazással. Az alsó szárelem élhajlított lemezből hegesztett konstrukció, oldalán csatlakozó keretekkel a kereszt szállító csiga összekapcsolásához. A felső szárelem egyszerű téglalap keresztmetszetű önhordó szerkezet. Ezen található a heveder szereléséhez szükséges szerelőnyílás. A fej a serleges elevátor hajtását biztosító dobból, láncfeszítő szerkezetből és kiadónyílásból áll. A fej a felső szárhoz csavarkötéssel csatlakozik. A fejben levő hajtódob a serleges heveder hajtását végzi, mely egyúttal a heveder feszítésére is szolgál. A hajtóműves motor lánchajtással hajtja a dobot. A serlegek végtelenített szövetbetétes gumihevederre vannak csavarkötéssel erősítve. Szállítási kapacitás: 6 m3/óra, Hajtómű teljesítmény: 1,5 kW

Szóróanyag-tisztító Finomlemezből hegesztett, szívott rendszerű kétlépcsős szóróanyag szelektáló berendezés. A lépcsők felülete gumiborítással rendelkezik. Ajtaján szívónyílások találhatók. A szélfajtázó hátsó végére csőcsonk van felszerelve. Ennek bármelyik vég- pontjára csatlakozhat a légsebességet szabályozó pillangószelep. A szélfajtázó által leválasztott porszennyeződés gumicsövön távozik a portartályba. A megtisztított szemcse az adagoló-puffertartályba surran.

Szóróanyag adagoló tartály A szóróanyag tisztítóban szelektált szóróanyag az adagolótartályban gyűlik össze. Az adagoló tartály alján szektorzár biztosítja a szórófejek szemcseellátásának szabályozását. A szektor zár pneumatikus működtetésű. Ütközők állításával beállítható a kiszórni kívánt szemcse mennyiség. A tartályba kerülő szóróanyag csak egy belső rostán keresztül folyhat le, melyen fennakadnak azok a nagyméretű szennyeződések, melyek a szóró fejekbe jutva zavarokat okozhatnak. Tartály térfogat 0,3m3- lefolyónyílások száma: 2.db A lefolyó csonkokból a szóróanyag kopásálló gumitömlőkön folyik a szóró turbinákhoz.

Porelszívó rendszer. Tartalmazza- 1 db. APSZ 4 tip patronos, automatikus sűrített levegő impulzusos visszatisztítású szűrő berendezés, komplett, vezérléssel, patronokkal, csőcsatlakozó elemekkel, porgyűjtő garattal, lábakkal 1 db porgyűjtő edény. Elszívó ventilátor, hajtómotorral. Levegőcsövezés a szükséges légtechnikai elemekkel, idomokkal, hangtompítóval, kötőelemekkel.

Helyszíni szerelés, üzembe helyezés. A leszállított gépészeti egységeket szakembereink a helyszínen (belföldön) összeszerelik. Az összeállított szemcseszóró gépet beüzemelik, Vevő kijelölt személyeit a kezelésre és karbantartásra betanítják.Elvégezzük az érintésvédelmi méréseket, melyről jegyzőkönyvet készítünk.

APSZ patronos porleválasztó műszaki leírása

A berendezés rendeltetése Ipari üzemekben, eszközöknél keletkező poros levegő megszűrésére szolgál. Teljesen automatikusan működik, tartós üzembe alkalmazható készülék, mely a legkülönbözőbb fajtájú porok leválasztását kiváló hatásfokkal biztosítja.

A berendezés működése A szűrendő levegő ( gáz ) a poros levegő nyílásán áramlik be a levegőkamrába. Átáramlik a szűrőpatronokon , kívülről befelé, közben a por a patronok  külső felületén leválik. A tisztított levegő a kiadócsonkon át távozik, a leválasztott por egy garatba hull, ahonnan a kivezető szerelvényen keresztül elhagyja szűrőt. A patronok tisztítása sűrített levegő impulzusszerű befúvatással történik. A befújás ideje, valamint a szünetidő az elektronikus vezérlőegység segítségével változtatható.

Szerkezeti leírás A berendezés építőszekrény elv szerint készül. A szűrőelemek és a váz egyes részei, a vezérlés azonosak a különböző nagyságú porszűrőknél. A tisztítandó levegő a gép oldalán lévő csonkon keresztül jut be a gépbe. A levegő átáramolva a patronokon bejut a kimeneti kamrába, majd az elszívó fedélen átjutva távozik a berendezésből. A levegő csak a szűrőpatronokon keresztül juthat a kimeneti kamrába, aminek a hátsó fala speciális kialakítású a patronok stabil és átporzás mentes megfogása érdekében. A szűrőpatronok rögzítése csavarokkal történik. A kimeneti kamrában helyezkednek el a patronok tisztítására szolgáló fúvócsövek. Ezek úgy vannak elhelyezve, hogy a furatokon kiáramló nagy nyomású levegő be tudjon áramolni a patronokba és ott belülről kifelé haladva a felrakódott port a szűrőpatronok felületéről  lefújja. A fúvócsövekbe a levegő a légtartályból membránszelepen keresztül jut be. A membránszelep vezérlését az elektronikus vezérlő egység biztosítja. A lefúvatási és a szünetidő is – adott értékhatárok között – állíthatók. A szűrőpatronok cseréjéhez a kimeneti kamrára nagyméretű, tömített ajtók vannak szerelve, így a karbantartás biztonságosan és szakszerűen elvégezhető. A gravitáció és a lefúvatás miatt lehulló por a kamrák alatt elhelyezkedő kúpos garatba hullik, ahonnan egy por kiadagolón át a porgyűjtő edénybe kerül. A berendezésbe beépítet patronok minősége, és az eddig elvégzett mérések biztosítják azt, hogy a kibocsátott levegő porral szennyezettsége 3 mg/m3 alatti értéken legyen, amely levegő már a megszívott térbe visszavezethető. A gép be- és kimeneti kamrái acéllemezből készülnek, az elemek közötti tömítés biztosítja a kiporzás-mentességet. A gép profilacél vázba csavarkötéssel rögzített, a vázelemeken keresztül telepítési helyére rögzíthető. A berendezés nem igényel semmi karbantartói tevékenységet.

  • A porleválasztók DONALDSON TORIT ULTRA WEB patronokkal vannak szerelve.
  • A patronok porleválasztási hatásfoka 99,99 % .
  • A szűrőből kilépő tisztított levegő por emissziós értéke 3 mg/m3 alatt van.

Levegőcsövezés A levegőcsövezés horganyzott egyenes csövekből és csőidomokból, csőcsatlakozókból áll. A szemcseszóró gép,- a porleválasztó és az elszívó ventillátor elszívási és kifújási pontjait köti össze.

 

Vezérlés A vezérlőszekrényből indítható, leállítható valamennyi elektromos berendezés. Itt található a főkapcsoló amellyel a berendezést feszültség alá lehet helyezni illetve feszültség mentesíteni lehet. A vezérlés biztosítja a különböző motorok megfelelő sorrendben történő automatikus indítását, leállítását. Biztosítja a motorok túlterhelés elleni védelmét, valamint a biztonságtechnikai reteszeléseket. A berendezés elektromos betáp. igénye: 3 x 400 V, 50 Hz , vezérlőfeszültség 110 V AC.

Konvejor pálya A szemcseszórandó munkadarabokkal megtöltött függesztés a gép tetejéhez csatlakozó konvejorpályán jut a szórótérbe illetve a felrakási és leszedési pozícióba. A konvejor pálya a függesztés teherbírásának megfelelő méretű I gerendából készül. A pálya általában „Y” alakú, de ha a helyi viszonyok megkövetelik lehet „T” vagy fél „Y” alak is. A pályára két függesztés tartó kocsi van felszerelve. A függesztések mozgatása kézzel történik.

Műszaki adatok

A függesztés maximális méretei:

  • Magasság max.: 1200 mm
  • Átmérő  max. 800 mm
  • Sőlky max. 400 kg
  • Szórandó anyag minősége: acél

A szemcseszóró gép befoglaló méretei  és telepítési helyigénye:  a mellékelt rajz szerint

Szórási mód: szórókerékkel, kézi és automata üzemmódban

Szükséges kiszolgáló személyzet: 1 személy

Szóróanyag: Acélszemcse GP tipus

Szóróanyag töltet: 400 kg

 Szórási teljesítmény: 6-12 függesztés/óra

A gép zajterhelése a környezetre: 79-83 dB(A)

 

Szórófejek

Száma: 2 db

Típusa: ABR-380

Átmérő: 380 mm

Járókerék fordulatszáma: 2600 fordulat/perc

Szemcsekiszórás: 90 kg/min/szórófej

Hajtás teljesítmény: 5,5 kW/szórófej

 

Konvejorpálya

Terhelhetőség: 400 kg/függesztés

Energia igény

Elektromos: 16,5 kW

Sűrített levegő

Nyomás: 6 bar

Mennyiség: 6 m3/óra

Porelszívó ventilator teljesítménye: 3500 m3/h

Elektromos adatok

Tápfeszültség: 3 x 400 V

Vezérlőfeszültség: 24 V

Frekvencia:  50 Hz

 

GYIK

Gyakran ismételt kérdések

Üzemeink általában rendeléstől és előfizetést követő 3-5 hét alatt gyártják készre a megrendeléseket. Fontos hogy az Önök által biztosított alkatrészek megérkezzenek. Ilyen lehet például egy gázpalackkötegnél az Önök által biztosított palack vagy szelep. A 3-5 hét gyártási időn belül még számolni kell az Európán belül körülbelül 1 hetes szállítási idő.

Ha a saját már meglévő gázpalackjait akarja használni a gázpalackkötegek megépítéséhez akkor erre is lehetőség van. Fontos hogy a gázpalackok európai szabványoknak kell hogy megfeleljenek, s rendelkezzenek a gyártási dokumentumokkal

Gépeink árában egy raklapos csomagolást kalkuláltunk bele. A tapasztalat azt mutatja, hogy gyakran szükséges egy fa keretes és tekerőfóliás csomagolás. A csomagolás már biztonságos módon védi a gépet a szállítás közbeni sérüléstől. Extra igény esetén akár a fakeret még farostlappal is beburkolásra kerülhet.

Kapcsolódó termékek

Megbízható választás

Egyedi árajánlat alapján

PWENT 6 x 50 liter gázpalack köteg 200 bar, 300 bar vagy 350 bar üzemi nyomással, permanens vagy cseppfolyósítható gázokhoz. A gázpalack kötegeink az EU szabványoknak megfelelően kerülnek legyártásra. Hegesztett galvanizált szerkezet rozsdamentes kialakítású gyűjtőcsövezéssel, s sok más egyéb előnnyel. Kérem kattintson a részletekért. Egyedi tervekért és kivitelezésért illetve mennyiségi kedvezményekért kérem hívjon

Egyedi árajánlat alapján

Egyedi feliratozó és gravírozó, beütő gépek tervezése és gyártása. Akár speciális palackméret, akár speciális termék keressen igényeivel

Egyedi árajánlat alapján

Álló gázpalack köteg tengeri használatra. Speciális rögzítőfülek, tengerálló felületkezelés, tengeri és kikötői használatra szóló engedélyek.  4, 8, 9, 12, 16, 20, 24, 30 palackos kivitelben, akár 200 bar akár 300 bar üzemi nyomással. Robot hegesztett tűzi horganyzott acél szerkezet. Egyedi konstrukcióért és mennyiségi kedvezményért hívjon bennünket