GASy Gázpalack köteg (Álló) 30 x 50 liter

Szakterületeink

GASy Gázpalack köteg (Álló) 30 x 50 liter

GASy 30 x 50 liter 200 bar vagy 300 baros gázpalack köteg permanens vagy cseppfolyós gázokhoz. A gázpalack kötegeink az EU szabványoknak megfelelően kerülnek legyártásra. Robot hegesztett galvanizált szerkezet gyűrűs kialakítású gyűjtőcsövezéssel, s sok más egyéb előnnyel. Kérem kattintson a részletekért. Egyedi tervekért és kivitelezésért illetve mennyiségi kedvezményekért kérem hívjon

Ipari megbízhatóság

Tartós szerkezeti kialakítás és szabványos megoldások a biztonságos működésért.

Testreszabható kialakítás

Az egyedi műszaki igényekhez, gázfajtákhoz és üzemeltetési feltételekhez igazítva.

Leírás

Tudj meg többet a termékről

A mi GASy 30 db 50 literes gázpalackból áló gázpalack kötegeinket tudjuk szállítani akár 200 bar akár 300 bar üzemi nyomással. A kiajánlott árak tartalmazzák a keretet a gyűjtőcsövezést a gázpalackok csatlakozóit, nyomásmérő manométert, fő elzáró szelepet, szerelést, de a palackokat nem (hacsak az külön jelzésre nem került)  

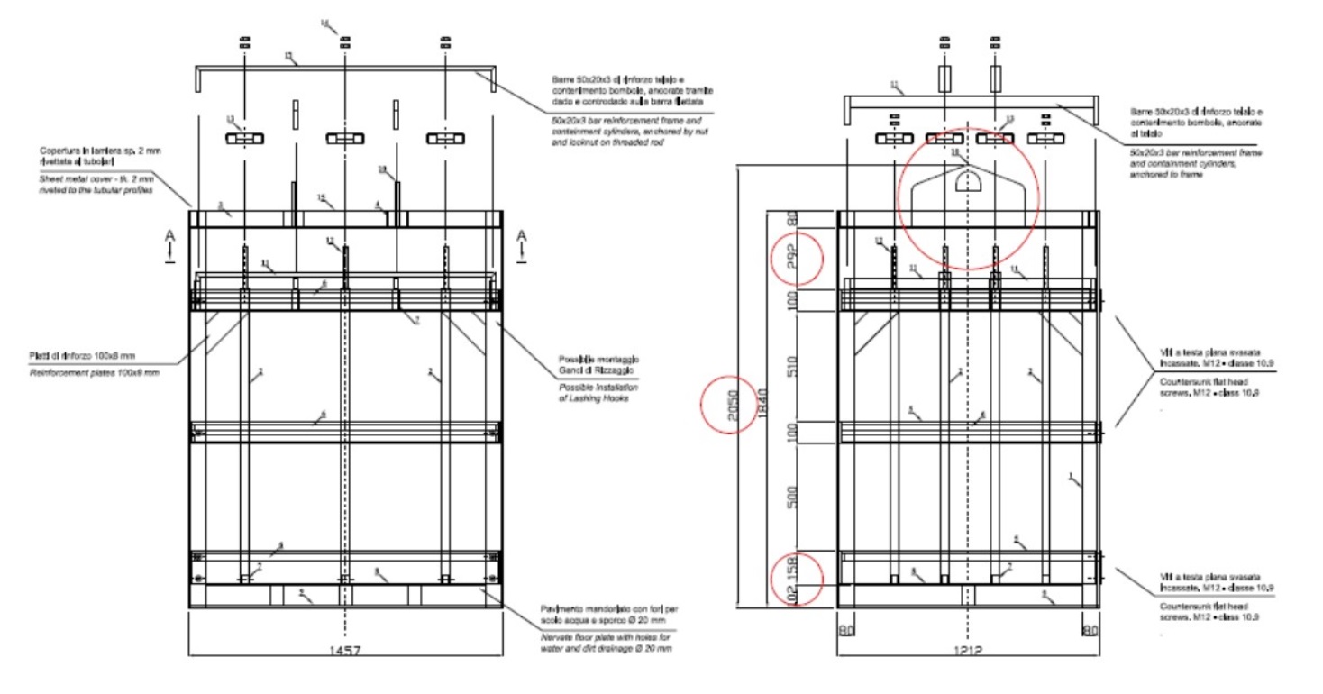
GASy Gázpalack köteg méretei

  • Magasság emelőszem nélkül: 1900 +-10 mm
  • Magasság emelőszemmel: min. 1970 mm, max 2100 mm
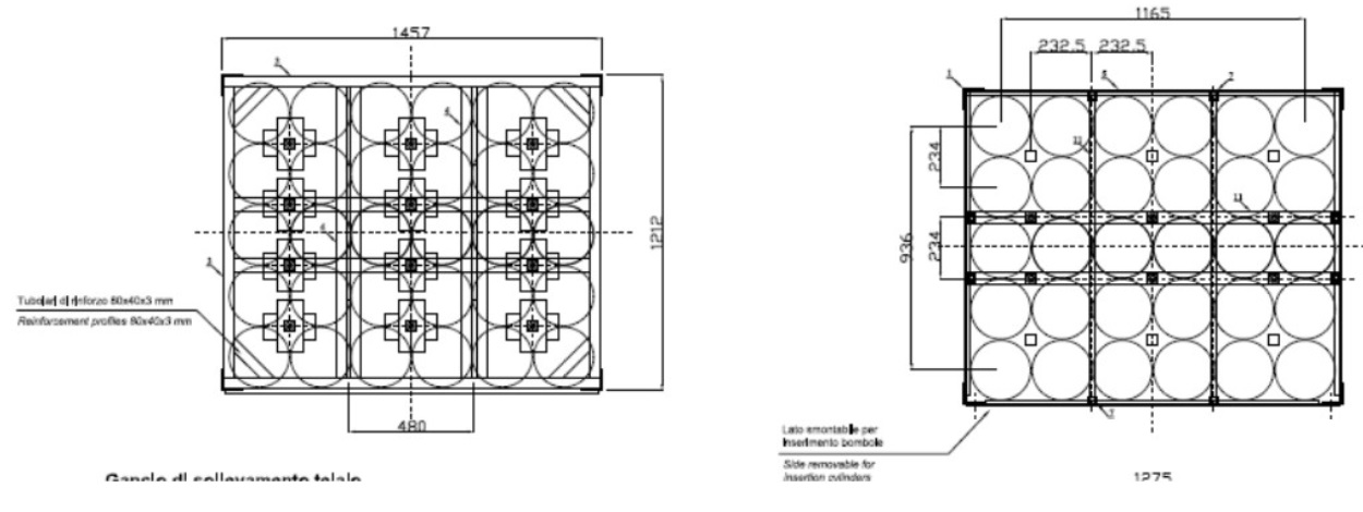
  • Szélesség: 1457 +-10 mm
  •  Mélység: 1212 +-10 mm

A GASy gázpalack köteg a következő szabványok szerint kerül legyártásra

  • Szerekezet és működés
    • 1999/36/CE
    • 2010/35/EU – TPED
  • EN 13769 gázpalackok és gázpalack kötegek jelölései
  • EN 10961 – gázpalack köteg gyűjtőcsövezésének tesztjei
  • EN 15607 – hegesztési eljárások
  • EN 11144 – gázcsatlakozások

GASy Gázpalack kötegeinkhez rendelhető opciók

  • Gázpalackok száma: 4, 6, 8, 9, 12, 16, 20, 24, 30 (vagy egyedi)
  • Különböző nyomásértékek: 200 bar, 300 bar
  • Elérhető gáznemek: acetilén (C2H2), argon (Ar), oxigén (O2), nitrogén (N2), széndioxid (CO2), vagy egyéb permanens vagy cseppfolyós  gázok (kérem kérje kollégánk segítségét ha egyéb gázról van szó)
  • Fő elzáró szelep / szelepek (db): 1 (szabványos), 2, 3, 4
  • Csövezés anyaga: Rozsdamentes acél AISI 304 1,4301, Rozsdamentes acél AISI 316 1,4401, Réz
  • Gázpalack: Új, Használt újraminősített, Használt lejárt minősítéssel
  • Fázisok száma: 1 (szabványos), 2
  • Opciók/ kiegészítők: Nyomásmérő manométer, Nyomáscsökkentő, Biztonsági szelep, Egyedi takarólemez, Palackszín/ kötegszín

 

A GASy gázpalack kötegeket a következő dokumentációval szállítjuk

  • Megfelelőségi bizonyítvány mint pl. a 2010/35/EU vagz ADR megfelelőség
  • Teszt bizonyítvány
  • Használti és karbantartási utasítás

A GASy gázpalack kötegeink előnyei

  1. Ellenőrzött keretek
  2. Teljes elválasztása a gázpalackoknak
  3. Jobb légmozgás a palackok között, jobb hőátadás
  4. Központi emelőszem
  5. Szeméylre szabott takarólemez
  6. Gyűrűs gyűjtőcsövezés
  7. Felső palackszerelés
  8. Biztonsági palack rögzítők(fent és lent)

További információért kérem olvassa el a következő cikkünket

Gázpalack amelyekből gázpalack köteget tudunk építeni

Meg tudjuk szerelni a gázpalackkötegét akár új gázpalackból akár az Ön által biztosított használt de érvényes gázpalackból akár már lejárt gázpalackból (természetesen ellenőrzéseket követően).

GYIK

Gyakran ismételt kérdések

Üzemeink általában rendeléstől és előfizetést követő 3-5 hét alatt gyártják készre a megrendeléseket. Fontos hogy az Önök által biztosított alkatrészek megérkezzenek. Ilyen lehet például egy gázpalackkötegnél az Önök által biztosított palack vagy szelep. A 3-5 hét gyártási időn belül még számolni kell az Európán belül körülbelül 1 hetes szállítási idő.

Ha a saját már meglévő gázpalackjait akarja használni a gázpalackkötegek megépítéséhez akkor erre is lehetőség van. Fontos hogy a gázpalackok európai szabványoknak kell hogy megfeleljenek, s rendelkezzenek a gyártási dokumentumokkal

Gépeink árában egy raklapos csomagolást kalkuláltunk bele. A tapasztalat azt mutatja, hogy gyakran szükséges egy fa keretes és tekerőfóliás csomagolás. A csomagolás már biztonságos módon védi a gépet a szállítás közbeni sérüléstől. Extra igény esetén akár a fakeret még farostlappal is beburkolásra kerülhet.

Kapcsolódó termékek

Megbízható választás

Egyedi árajánlat alapján

PWENT 6 x 50 liter gázpalack köteg 200 bar, 300 bar vagy 350 bar üzemi nyomással, permanens vagy cseppfolyósítható gázokhoz. A gázpalack kötegeink az EU szabványoknak megfelelően kerülnek legyártásra. Hegesztett galvanizált szerkezet rozsdamentes kialakítású gyűjtőcsövezéssel, s sok más egyéb előnnyel. Kérem kattintson a részletekért. Egyedi tervekért és kivitelezésért illetve mennyiségi kedvezményekért kérem hívjon

Egyedi árajánlat alapján

Egyedi feliratozó és gravírozó, beütő gépek tervezése és gyártása. Akár speciális palackméret, akár speciális termék keressen igényeivel

Egyedi árajánlat alapján

Álló gázpalack köteg tengeri használatra. Speciális rögzítőfülek, tengerálló felületkezelés, tengeri és kikötői használatra szóló engedélyek.  4, 8, 9, 12, 16, 20, 24, 30 palackos kivitelben, akár 200 bar akár 300 bar üzemi nyomással. Robot hegesztett tűzi horganyzott acél szerkezet. Egyedi konstrukcióért és mennyiségi kedvezményért hívjon bennünket